Birutės Terasos
Apie Projektą
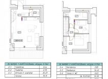
Projektas Birutės terasos – nauji butai ir kotedžai kurortinio miesto centre Birštone. A energetinės klasės ekonomiški namai yra išskirtinio dizaino: ilgaamžiaus skalūno akmens ir maumedžio derinys atkreips kiekvieno praeivio dėmesį. Butai ir kotedžai, turi didžiules terasas arba balkonus ir leis džiaugtis nuostabiais vakarais. Birutės terasose, bus pastatyti, tik 6 namai su vitrininiais langais. Dviejuose namuose, bus tik 8 butai , kurių kvadratūra bus, nuo 27 kv.m. iki 38 kv.m.,o keturiuose namuose, bus tik 8 kotedžai, ( keturi dvibučiai), kurių kvadratūra svyruos nuo 52kv.m. iki 75kv.m. Būsimieji gyventojai galės pasirinkti iš keletą išplanavimų.
Nemuno kilpų regioninio parko apsuptyje, galėsite mėgautis: sutvarkyta miesto aplinka, ramybe, šviežiu oru, išpuoselėtais parkais, kuriuose įrengti lauko treniruokliai, muziejais, pažintiniais takais, nuolatos vykstančiais renginiais, kavinėmis, SPA centrais, dviračių takais, pasiplaukiojimu laisvais ir daugybe kitų malonių veiklų. Birutės terasose įsikūrę naujieji gyventojai, galės mėgautis, ne tik ramybe ir poilsiu, bet ir itin mažomis sąskaitomis už šildymą.Sandarus ir kokybiškas namas su autonominiu dujiniu šildymu, nekels papildomų rūpesčių. Ramioje muziejaus gatvėje pastatyti namai, nutolę apie 300m., nuo Nemuno ir IKI prekybos centro,vos ranka pasiekiemi, net ir pagyvenusio amžiaus žmogui.
Ar Jūs , nors kartą susimąstėte, kad norėtumėte gyventi moderniame ir išpuoselėtame mieste, gamtos apsuptyje, ramioje ir saugioje aplinkoje ir pradėti naują gyvenimo etapą? Galbūt pavargote, nuo didelių sąskaitų? Norite daugiau komforto ir pabėgti, nuo kasdieninių rūpesčių? Nauji namai, laukia naujų šeimininkų!
Daugiau informacijos:
Apdaila, Kainos, Pristatymas
Privalumai
- A energinio naudingumo klasė
- Grindinis šildymas








Siūlau paskaityti tekstus talpinamus statytojo svetainėje, ir linksma, ir svetima gėda kartu 😀 http://birutesterasos.lt/lt/privalumai
Tikrai :DD Kai butai provincijoj kainuoja 1900 už kvadratą, tai galėtų BENT gramatines klaidas ir skyrybą išsitaisyti, stiliaus ir viso kito jau nė neminėsiu 😀