Baltupio Krantas
Apie Projektą
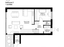
Nauji namai Baltupio krantas tai išskirtinėje vietoje statomas 12 modernių ir aukštos kokybės sublokuotų A klasės namų kvartalas, kur miestas įsilieja į gamtą. Tai namai skirti gyventi aktyviems miesto žmonėms, žalumos apsuptyje pačiame miesto šurmulyje. Kiekvienas sublokuotas namas turės privatų kiemelį ir terasą, orientuotą į vandens telkinį ir želdinius. Bendras teritorijos plotas kartu su pakrantės zona yra apie 40 arų.
„Baltupio kranto“ projektas yra unikalioje vietoje – ant Baltupio (arba kitaip Cedrono) tvenkinio kranto. Rami vieta švaraus tvenkinio pakrantėje su panorama į vandens telkinį, šalia kurio auga liepos, ąžuolai, klevai, sutinkamos kitos retos augalų rūšys.
„Baltupio kranto“ projektas vystomas mažaaukščių namų zonoje, Naujakiemio g. 21 C ir 23. Iš šios vietos lengvai pasiekiami prekybos centras Ozas, Siemens arena, Vichy Vandens parkas, Ozo parkas, Verkių regioninis parkas. Šalia kelios mokyklos ir darželiai, transporto stotelės, maisto prekių parduotuvė. Labai patogus susisiekimas Kalvarijų ir Geležinio vilko g.
Norint pasiekti išskirtinį kokybės standartą, namų statybai naudojamos aukštos kokybės ir šiltos medžiagos, pažangūs projektavimo sprendimai:
Privalumai:
A energetinė klasė. Sienos silikatinių blokelių mūro, apšiltinos poleritano ir polistirolo plokštėmis.
Šildymas geoterminis (namai Kedronas) ir dujinis (namai Nojus, Viktorija). Visuose namuose įrengiamas grindinis šildymas, su galimybe išmaniajam valdymui.
Fasado ir stogo apdailai bus naudojamos prabangios ilgaamžės medžiagos: klinkeris, skalūnas ir aukštos kokybės mediena.
Langai mediniai su 3 stiklų paketu, įvairiai varstomi.
Suprojektuota rekuperacinė vėdinimo sistema, užtikrinanti nuolatinį šviežio oro tiekimą ir šalinimą nevarstant langų..
Visi namai su privačiais kiemeliais ir terasomis iš kurių atsiveria vaizdas į tvenkinį ir želdynus.
Bus sutvarkoma infrastruktūra ir aplinka, želdynai, įrengti nauji privažiavimai, tvoros nuo kaimynų
Ties sklypu bus platinama Naujakiemio gatvė, įrengtas šaligatvis
Galimi trys gipskartonio vidaus pertvarų variantai: standartinis – naudojant įprastą gipskartonį, akustinis – naudojant specialų akustinį gipskartonį ir ypatingasis – turintis ypatingų papildomų savybių gipskartonis.
Daugiau informacijos:
Apdaila, Kainos, Pristatymas
Privalumai
- A energinio naudingumo klasė
- Garažai
- Grindinis šildymas
- Mediniai langai
- Rekuperacija









Labai gražūs kotedžai, patiko fasadai ir išplanavimas. Kotedžų kiemeliai yra visiškai šalia tvenkinio, atrodo lyg būtų privatus krantas:)